Modelo S.H. 4 + 4 BOX 3h
Con una superficie construida de 168.71 m2, la línea de dos plantas nos ofrece unas viviendas modernas, confortables y eficientes.
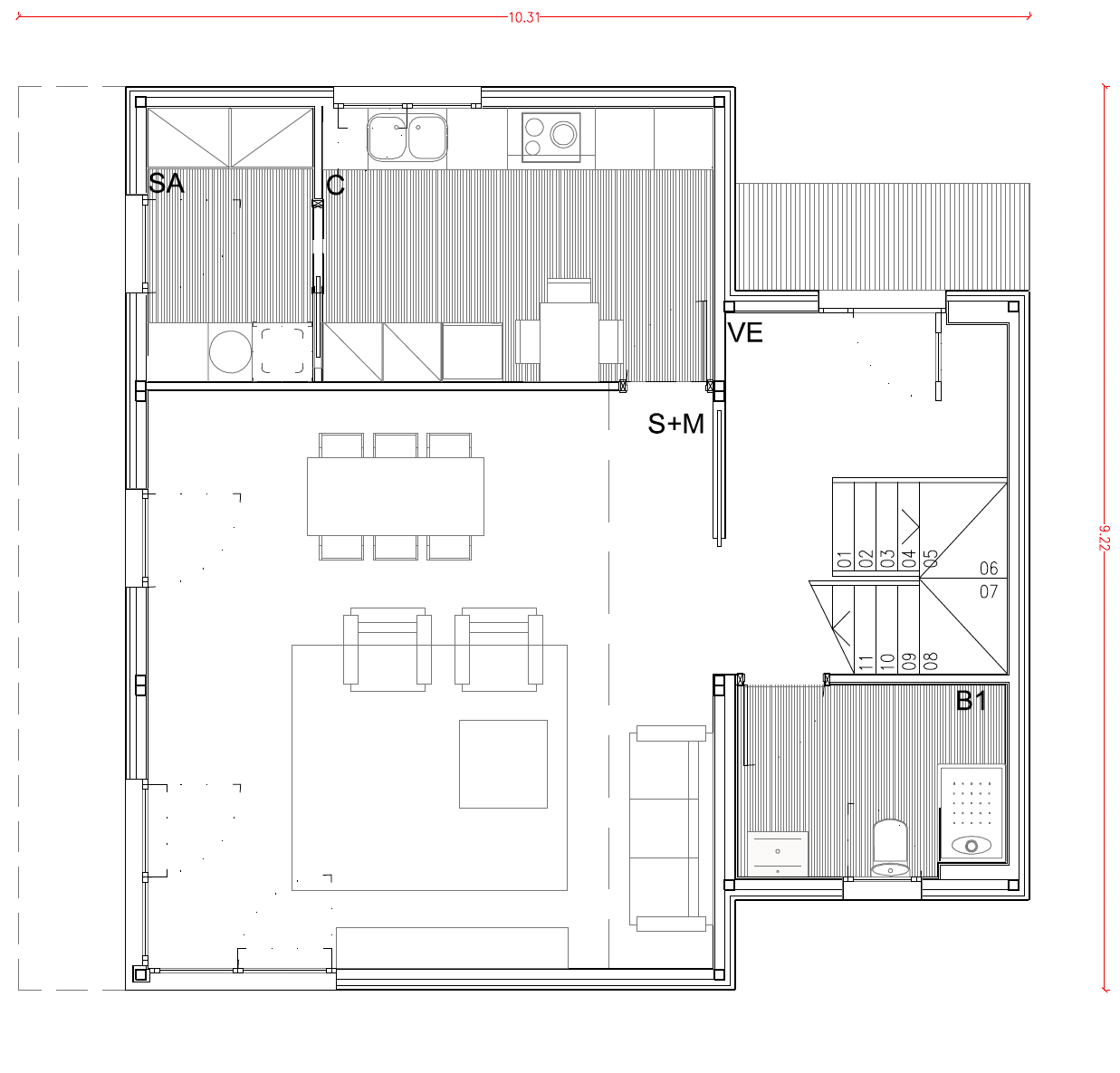
En la planta baja, denominada zona de día, encontramos la gran sala de estar, la cocina independiente con lavadero y un aseo.
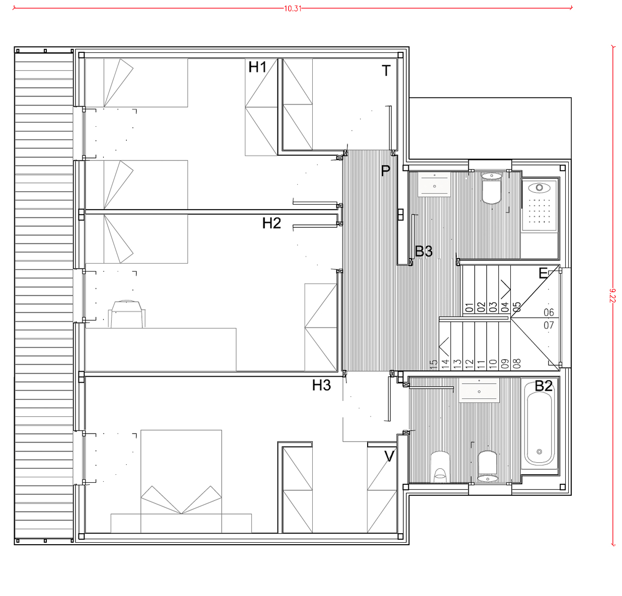
En la planta superior o zona de noche, encontramos una habitación doble con baño, dos habitaciones individuales y un baño.






ESPECIFICACIONES
| Total superfície útil: 65,90 m² | |
| Salón comedor: 33,96 m² | |
| Cocina: 11,08 m² | |
| Lavadero: 4,71 m² | |
| Vestidor: 6,94 m² | |
| Baño 1: 5,25 m² | |
| Escalera: 3,96 m² |
ESPECIFICACIONES
| Total superfície útil: 68,95 m² | |
| Habitación 1: 11,00 m² | |
| Habitación 2: 13,52 m² | |
| Habitación 3: 12,92 m² | |
| Baño 2: 5,24 m² | |
| Baño 3: 3,45 m² | |
| Vestidor: 3,64 m² | |
| Pasadizo: 5,90 m² | |
| Trastero: 3,58 m² | |
| Balcón: 9,70 m² |

Preguntas frecuentes
Smart Homes parte de unos modelos prediseñados, con el único objetivo de hacer nuestro producto lo más asequible posible.
Sin embargo se puede diseñar cualquier topología de vivienda previo encargo del proyecto de arquitectura.
No hay límite ni en superficie ni en altura.
El cliente podrá escoger dentro de una gama, por ejemplo: el color de la fachada, de la carpintería exterior, pavimentos interiores o el color del mobiliario de la cocina.
Nuestra empresa le propondrá unas altas calidades y unas opciones a escoger, pero si optas por cualquier acabado especial o personalizado le realizaremos un estudio económico con todos los detalles solicitados.
Smart Homes es una vivienda normal, lo que nos diferencia es el método constructivo.
Por esta razón, su casa será hipotecable como cualquier otro tipo de casa.
Diseñamos tu vivienda a partir de este modelo
Cuéntanos tu idea, ubicación y necesidades. Nuestro equipo te asesorará para transformar este modelo en una vivienda única, adaptada a tu estilo de vida.
